Ground Floor Plan Options

Click floor plan to explore in 3D

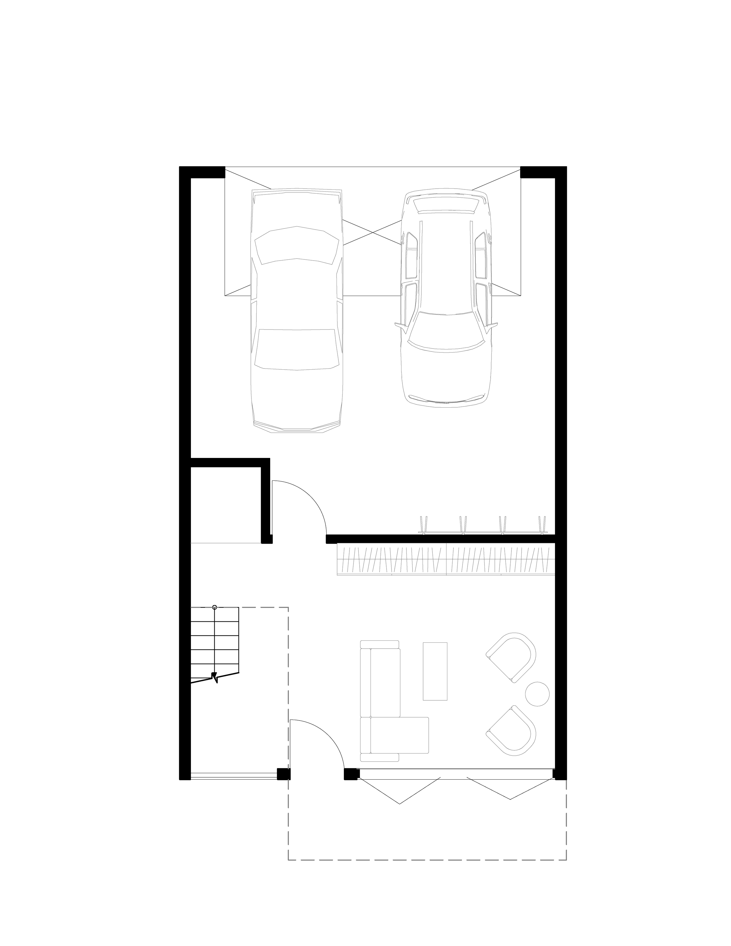
The Den/Living Room arrangement features a large living area perfect for entertaining or relaxing, storage, and a two-car garage.

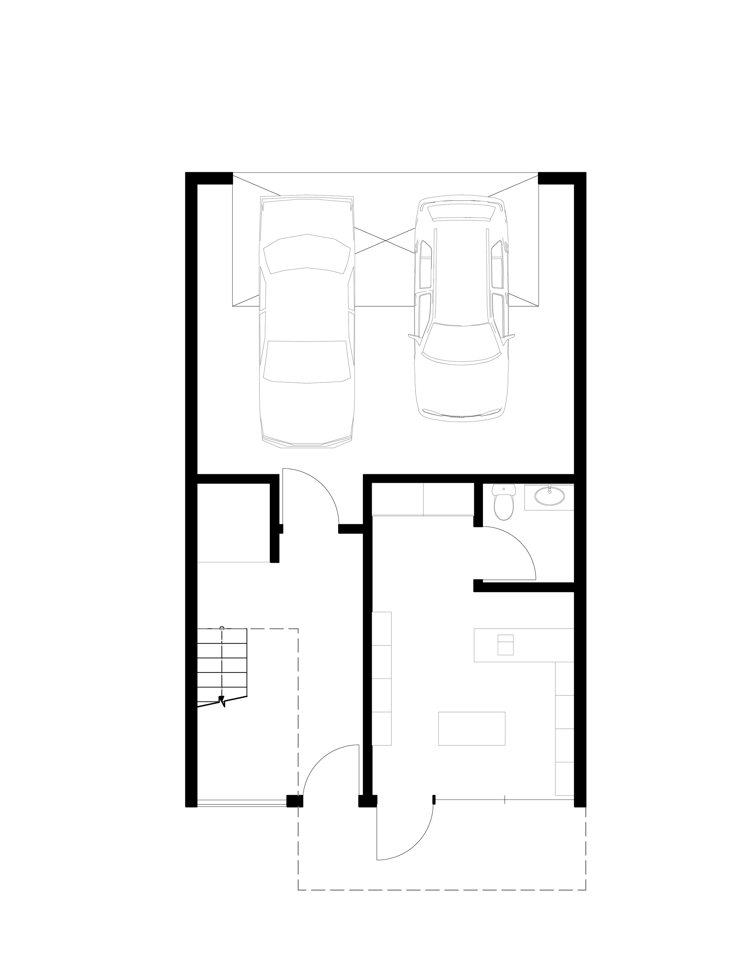
A compact, efficient ADU organized for one‑ or two‑person occupancy. The layout prioritizes sunlight, efficiency, and storage while keeping living areas public and the bedroom private.

The Storefront option offers a storefront location with storage and private bathroom with maintaining separation from the living units.

Option 1 - Den/Living

Den/Living

The Den/Living Room arrangement features a large living area perfect for entertaining or relaxing, storage, and a two-car garage.

Legend:

1 - Living 13-0 x 17-6
2 - Lounge 11-0 x 14-0
3 - Kitchen 11-0 x 13-6
4 - Dining 16-6 x 10-0
5 - Half Bathroom 4-6 x 4-6
6 - Exterior Balcony
7 - Stair Hall
8 - Elevator

Option 2 - ADU

ADU

A compact, efficient ADU organized for one or two‑person occupancy. The layout prioritizes sunlight, efficiency, and storage while keeping living areas public and the bedroom private.

Legend:

1 - Living 13-0 x 17-6
2 - Lounge 11-0 x 14-0
3 - Kitchen 11-0 x 13-6
4 - Dining 16-6 x 10-0
5 - Half Bathroom 4-6 x 4-6
6 - Exterior Balcony
7 - Stair Hall
8 - Elevator

Option 3 - Storefront

Storefront

The Storefront option offers a storefront location with storage and private bathroom while maintaining separation from the living units.

Legend:

1 - Living 13-0 x 17-6
2 - Lounge 11-0 x 14-0
3 - Kitchen 11-0 x 13-6
4 - Dining 16-6 x 10-0
5 - Half Bathroom 4-6 x 4-6
6 - Exterior Balcony
7 - Stair Hall
8 - Elevator