Explore Multifamily Options by Floor

Click on the desired floor to begin exploring options in 3D

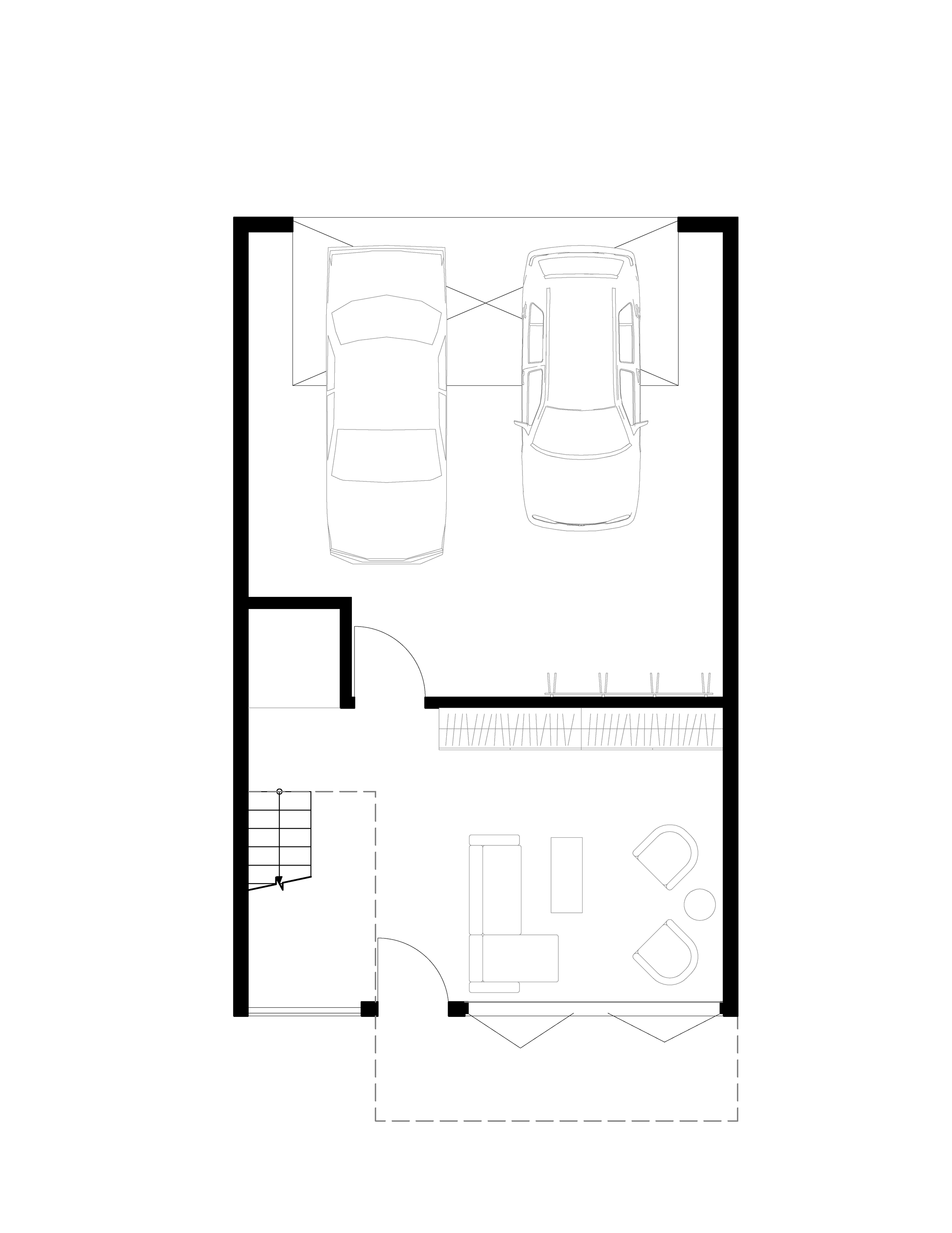
The Den/Living Room arrangement features a large living area perfect for entertaining or relaxing, storage, and a two-car garage.

Ground Floor Options

Click any plan to begin exploring options in 3D

A compact, efficient ADU organized for one‑ or two‑person occupancy. The layout prioritizes sunlight, efficiency, and storage while keeping living areas public and the bedroom private.

The Storefront option offers a storefront location with storage and private bathroom with maintaining separation from the living units.

Second Floor Options

Click any plan to begin exploring options in 3D

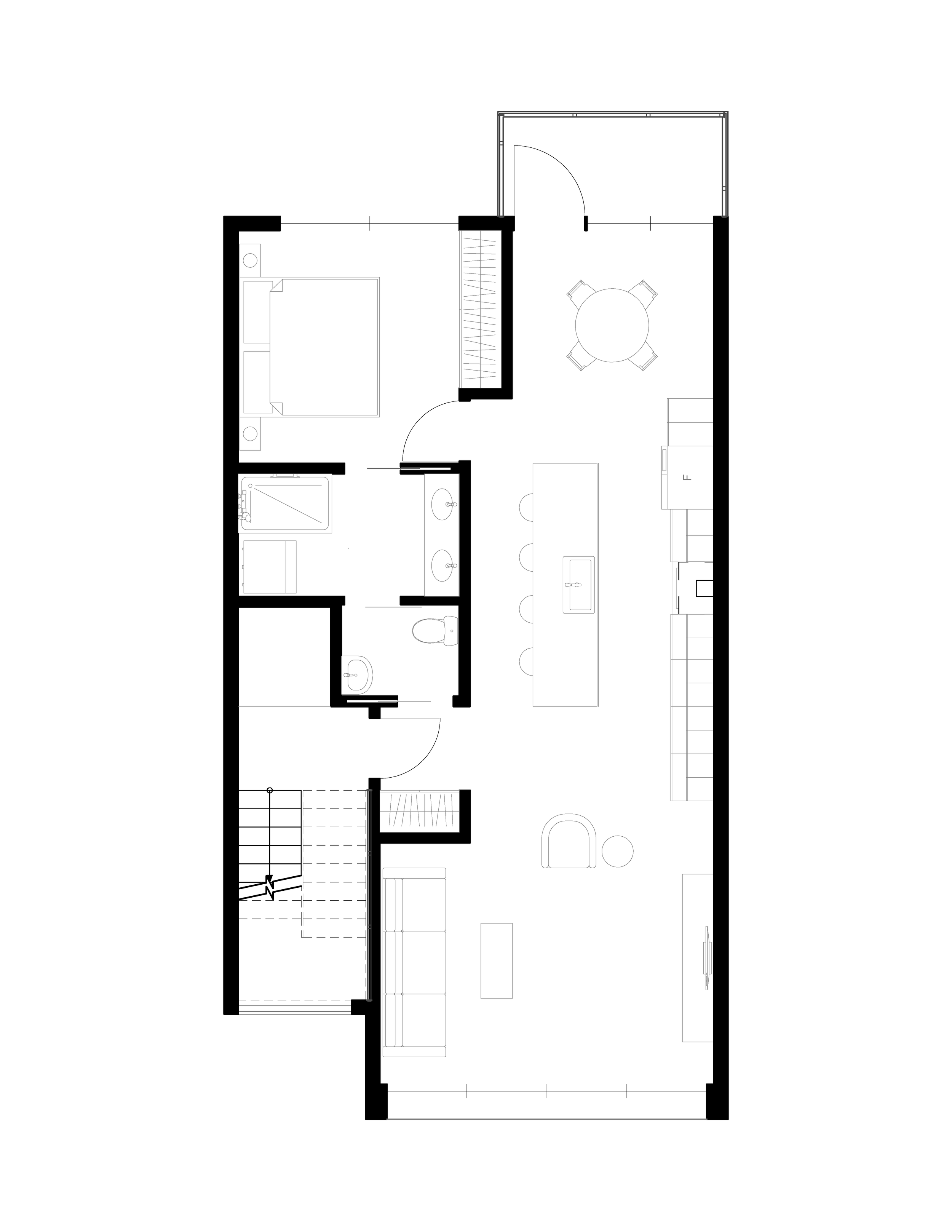
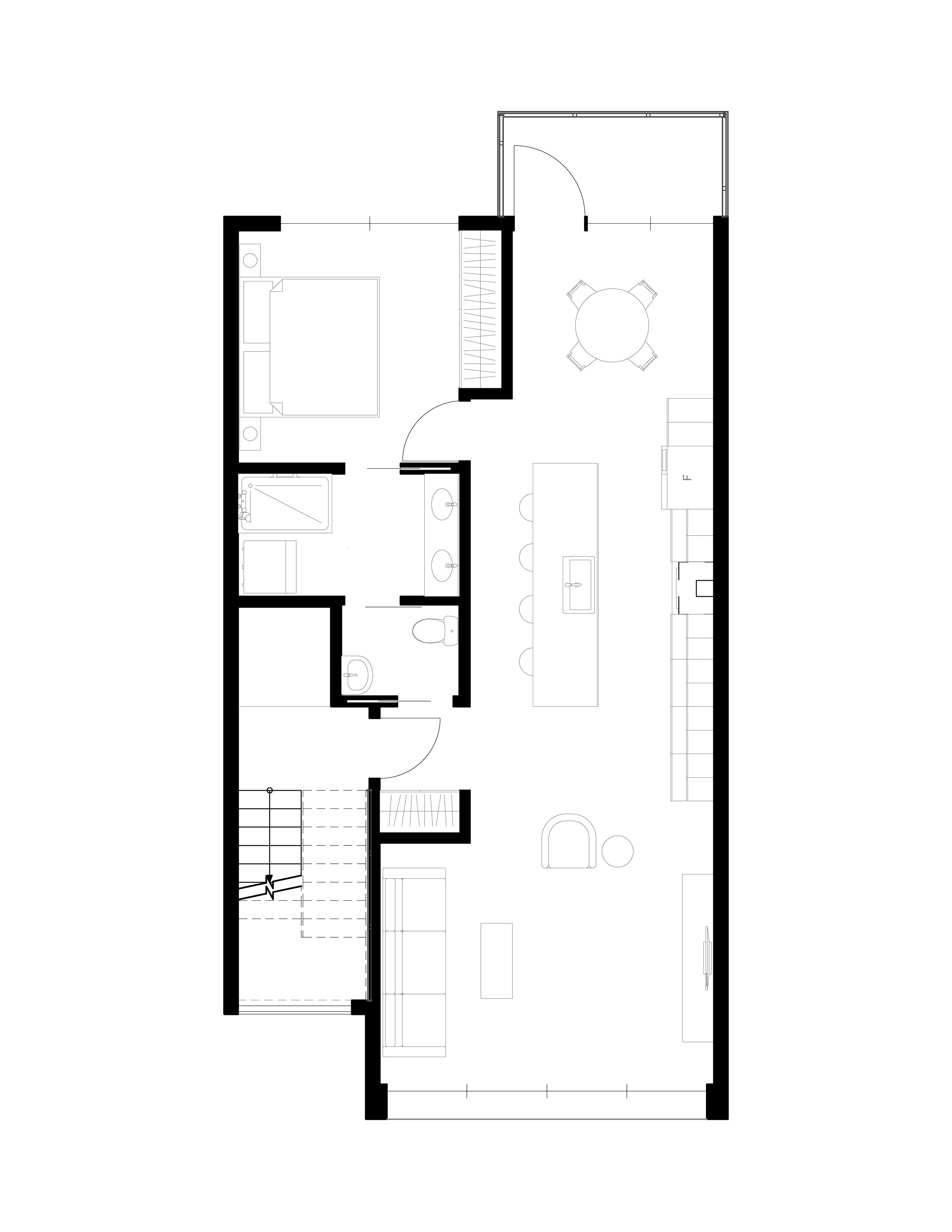
The West Bedroom option features living, dining, and kitchen spaces that stretch north to south to maximize views. This layout also includes a bedroom with a 3/4 bathroom and in-unit washer and dryer.

The North Bedroom option features south facing living, dining, and kitchen spaces for sunlight access and a bedroom to the north with a walk-in closet, 3/4 bathroom and laundry.

Third Floor Options

Click any plan to begin exploring options in 3D

The West Bedroom option features living, dining, and kitchen spaces that stretch north to south to maximize views. This layout also includes a bedroom with a 3/4 bathroom and in-unit washer and dryer.

The North Bedroom option features living, dining, and kitchen spaces adjacent to a cantilevered bedroom with a walk-in closet, 3/4 bathroom and in-unit washer and dryer.

Roof Deck

Click any plan to begin exploring options in 3D

The full floor deck offers large rooftop deck space perfect for creating your ideal rooftop environment.

The Kitchen and Lounge plan offers a cozy indoor lounge with immediate access to the outdoor kitchen and living spaces, creating an ideal space for entertaining or relaxation