Roof Deck Options

Click floor plan to explore in 3D

Full Roof Deck

The full floor deck offers large rooftop deck space perfect for creating your ideal rooftop environment.

Kitchen & Lounge

The Kitchen and Lounge plan offers a cozy indoor lounge with immediate access to the outdoor kitchen and living spaces, creating an ideal space for entertaining or relaxation

Full Floor Living

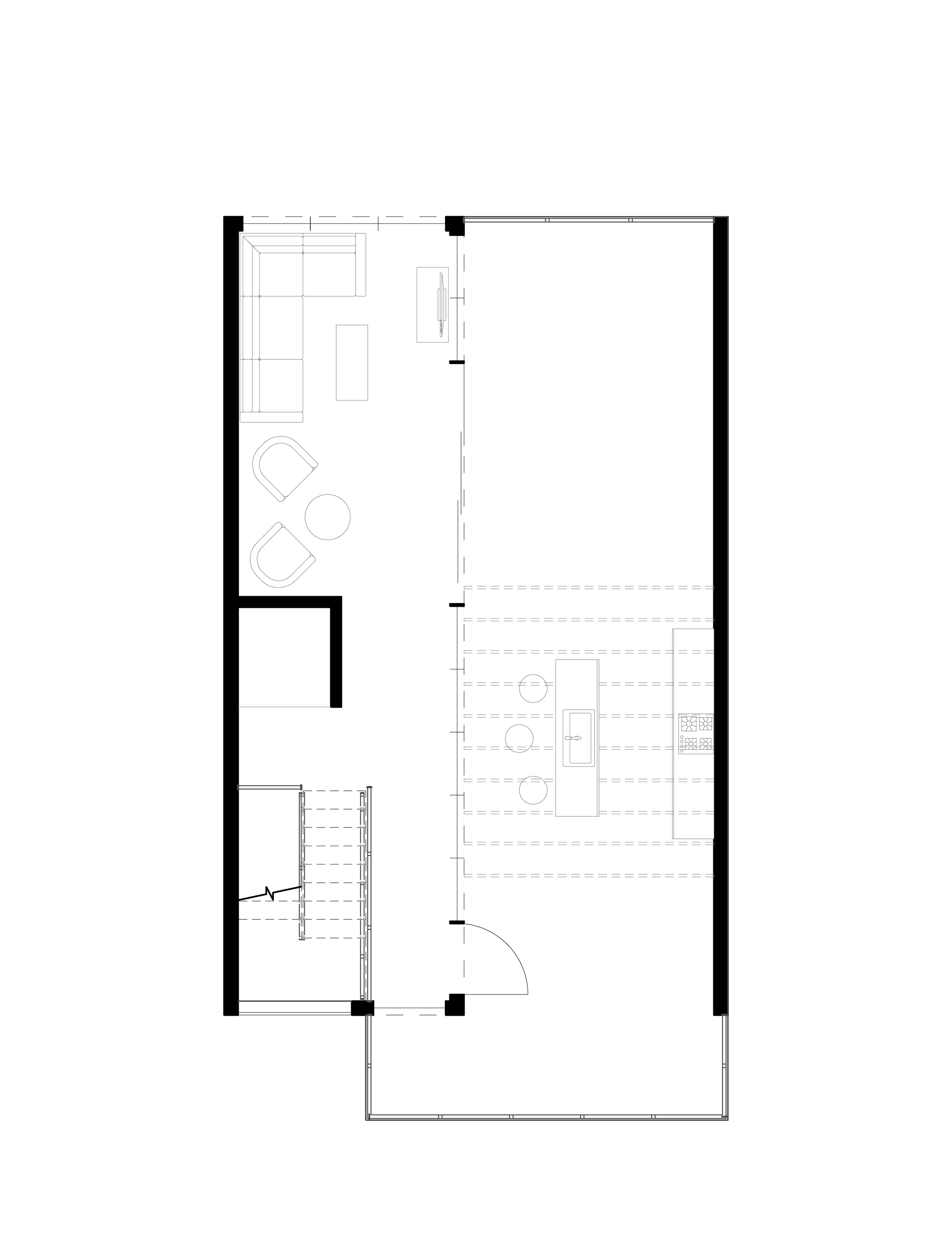
The Full Floor Living option provides spacious living, kitchen, and dining areas perfect for…

Full Floor Living

The Full Floor Living option provides spacious living, kitchen, and dining areas perfect for…

Full Floor Living

The Full Floor Living option provides spacious living, kitchen, and dining areas perfect for…

Explore Other Floor Plans

Option 1 - Full Roof Deck

Full Roof Deck

The full floor deck offers large rooftop deck space perfect for creating your ideal rooftop environment.

Legend:

1 - Living 13-0 x 17-6
2 - Lounge 11-0 x 14-0
3 - Kitchen 11-0 x 13-6
4 - Dining 16-6 x 10-0
5 - Half Bathroom 4-6 x 4-6
6 - Exterior Balcony
7 - Stair Hall
8 - Elevator

Option 2 - Kitchen & Lounge

Full Floor Living Option

The Kitchen and Lounge plan offers a cozy indoor lounge with immediate access to the outdoor kitchen and living spaces, creating an ideal space for entertaining or relaxation

Legend:

1 - Living 13-0 x 17-6
2 - Lounge 11-0 x 14-0
3 - Kitchen 11-0 x 13-6
4 - Dining 16-6 x 10-0
5 - Half Bathroom 4-6 x 4-6
6 - Exterior Balcony
7 - Stair Hall
8 - Elevator