Second Floor Plan Options

Click floor plan to explore in 3D

The Full Floor Living option provides spacious living, kitchen, and dining areas perfect for entertaining and comfortable living, as well as a half bathroom, balcony, and elevator

The Mezzanine layout is similar to the Full Floor Living, donning large living, dining, and kitchen spaces while also opening to the floor below creating vertical connections through the space

The North Bedroom option features south facing living, dining, and kitchen spaces for sunlight access and a bedroom to the north with a walk-in closet, 3/4 bathroom and laundry.

The West Bedroom option features living, dining, and kitchen spaces that stretch north to south to maximize views. This layout also includes a bedroom with a 3/4 bathroom and in-unit washer and dryer.

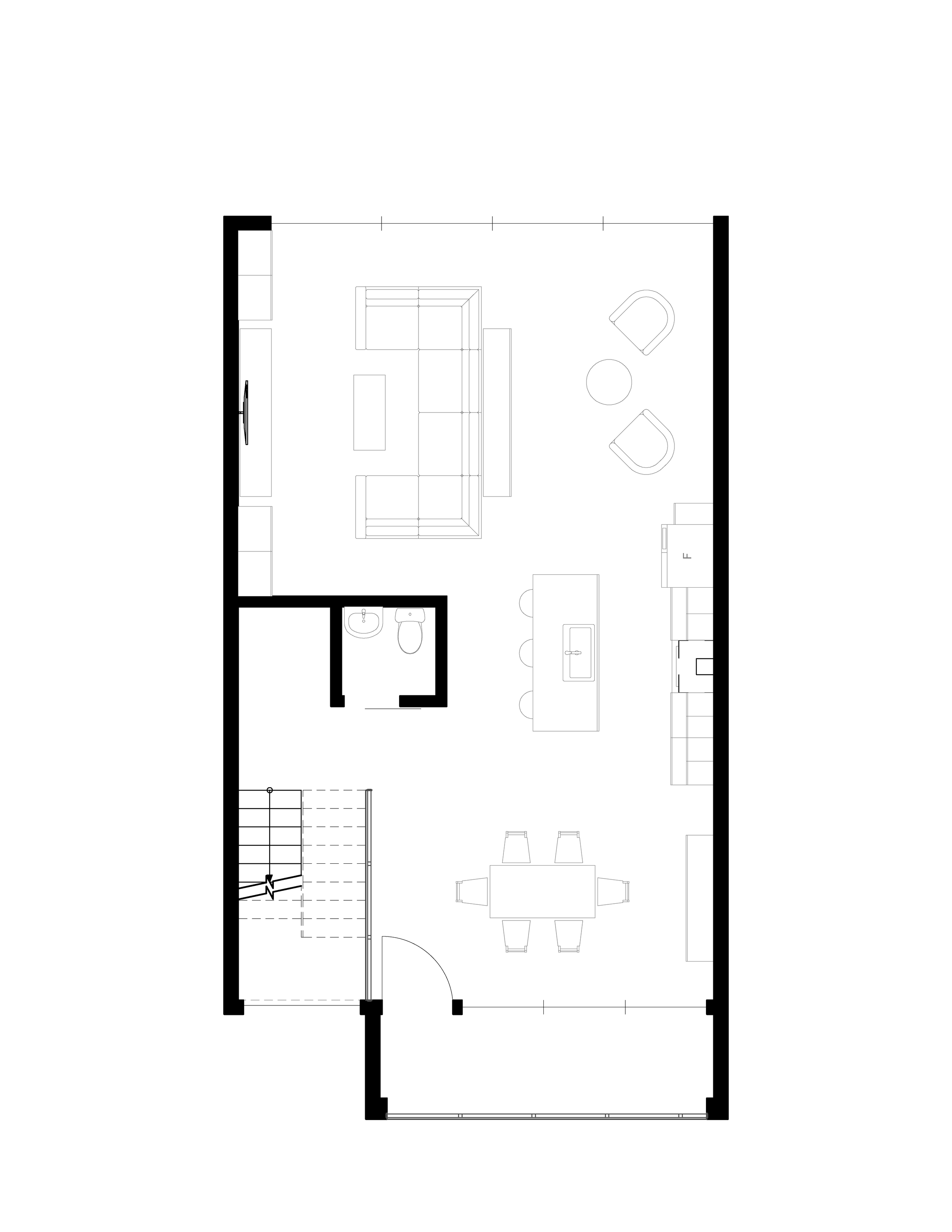
Option 1 - Full Floor Living

Full Floor Living Option

The Full Floor Living option provides spacious living, kitchen, and dining areas perfect for entertaining and comfortable living, as well as a half bathroom, balcony, and elevator

Legend:

1 - Living 13-0 x 17-6
2 - Lounge 11-0 x 14-0
3 - Kitchen 11-0 x 13-6
4 - Dining 16-6 x 10-0
5 - Half Bathroom 4-6 x 4-6
6 - Exterior Balcony
7 - Stair Hall
8 - Elevator

Option 2 - Mezzanine

Mezzanine

The Mezzanine layout is similar to the Full Floor Living, donning large living, dining, and kitchen spaces while also opening to the floor below creating vertical connections through the space

Legend:

1 - Living 13-0 x 17-6
2 - Lounge 11-0 x 14-0
3 - Kitchen 11-0 x 13-6
4 - Dining 16-6 x 10-0
5 - Half Bathroom 4-6 x 4-6
6 - Exterior Balcony
7 - Stair Hall
8 - Elevator

Option 3 - West Bedroom

West Bedroom

The West Bedroom option features living, dining, and kitchen spaces that stretch north to south to maximize views and sunlight. This layout also includes a bedroom with a 3/4 bathroom and in-unit washer and dryer.

Legend:

1 - Living 13-0 x 17-6
2 - Lounge 11-0 x 14-0
3 - Kitchen 11-0 x 13-6
4 - Dining 16-6 x 10-0
5 - Half Bathroom 4-6 x 4-6
6 - Exterior Balcony
7 - Stair Hall
8 - Elevator

Option 4 - North Bedroom

Full Floor Living Option

The North Bedroom option features south facing living, dining, and kitchen spaces for sunlight access and a bedroom to the north with a walk-in closet, 3/4 bathroom and laundry.

Legend:

1 - Living 13-0 x 17-6
2 - Lounge 11-0 x 14-0
3 - Kitchen 11-0 x 13-6
4 - Dining 16-6 x 10-0
5 - Half Bathroom 4-6 x 4-6
6 - Exterior Balcony
7 - Stair Hall
8 - Elevator