Explore Residence Configurations by Floor

Click on the desired floor to begin exploring options in 3D

Ground Floor Options

Click any plan to begin exploring options in 3D

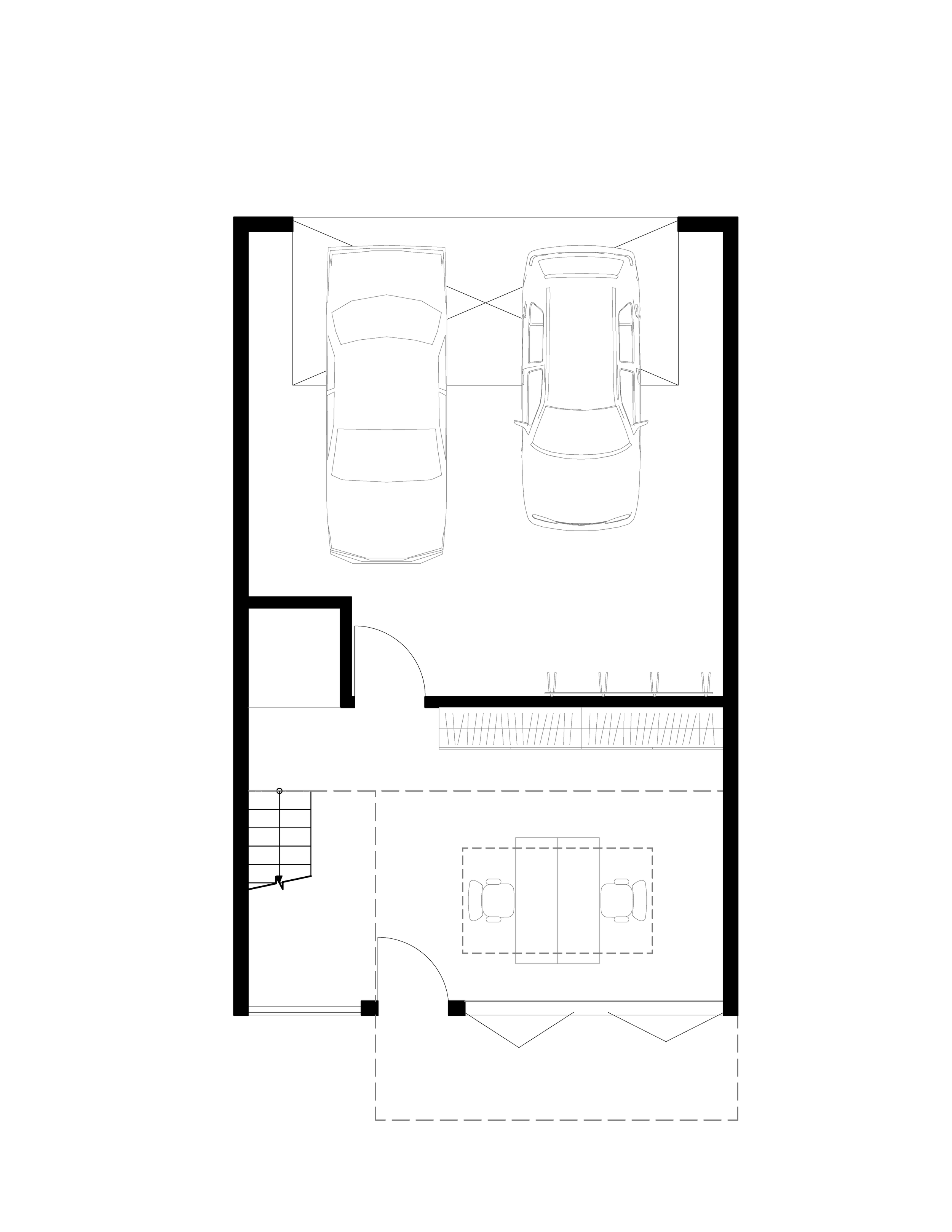
The Den/Living Room arrangement features a large living area perfect for entertaining or relaxing, storage, and a two-car garage.

The Den/Living Room option is available for single unit townhome configurations.

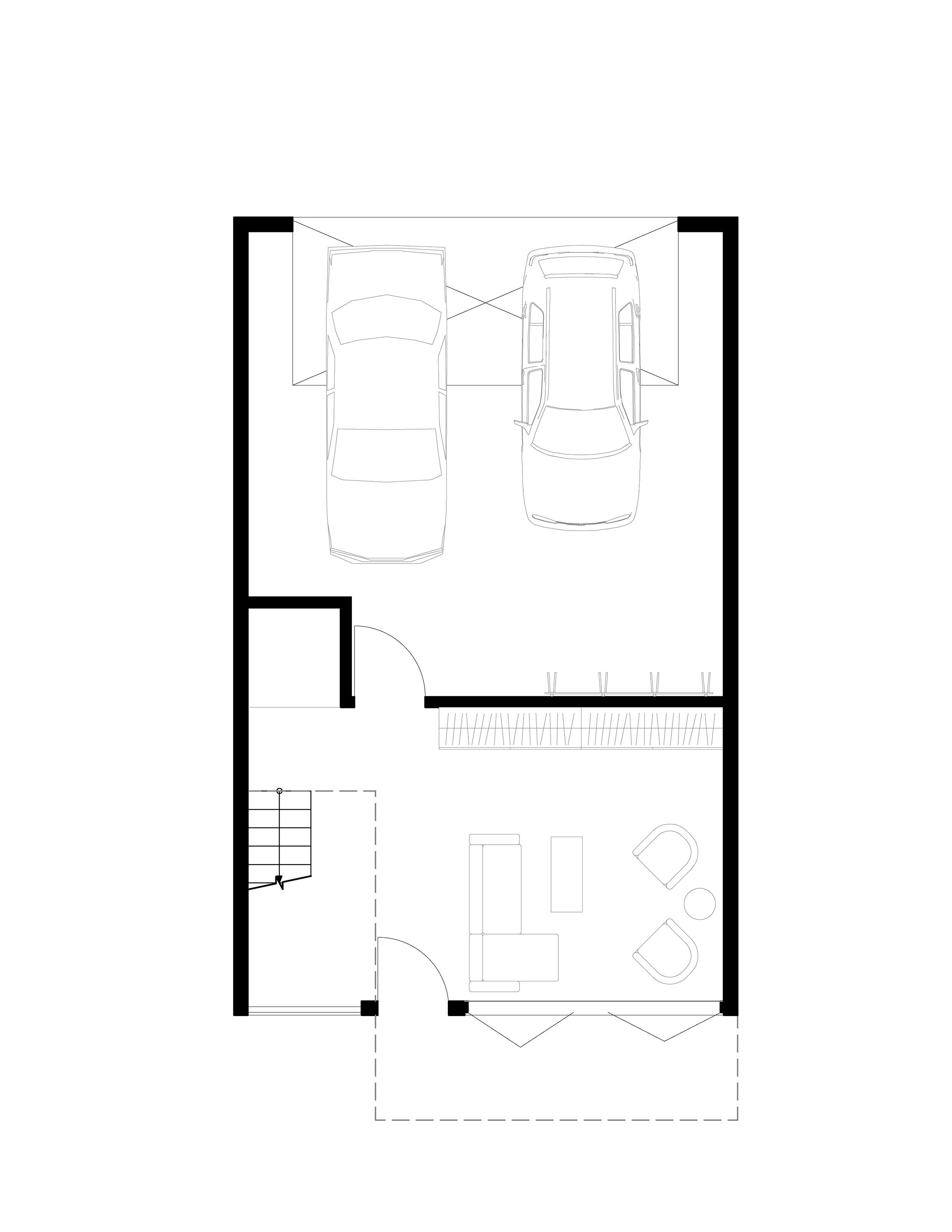
Similar to the Den/Living layout, the Mezzanine option features a Den space below with an overhead mezzanine that connects the Den to the Kitchen located on the floor above.

The Mezzanine option is available for single unit townhome configurations.

A compact, efficient ADU organized for one‑ or two‑person occupancy. The layout prioritizes sunlight, efficiency, and storage while keeping living areas public and the bedroom private.

This option offers a separate entrance to maintain separation between ADU and rest of townhome. Ideal for Duplex or Triplex configurations.

The Storefront option offers a storefront location with storage and private bathroom while maintaining separation from the living units.

The storefront option is available for single unit or duplex townhome configurations.

Second Floor Options

Click any plan to begin exploring options in 3D

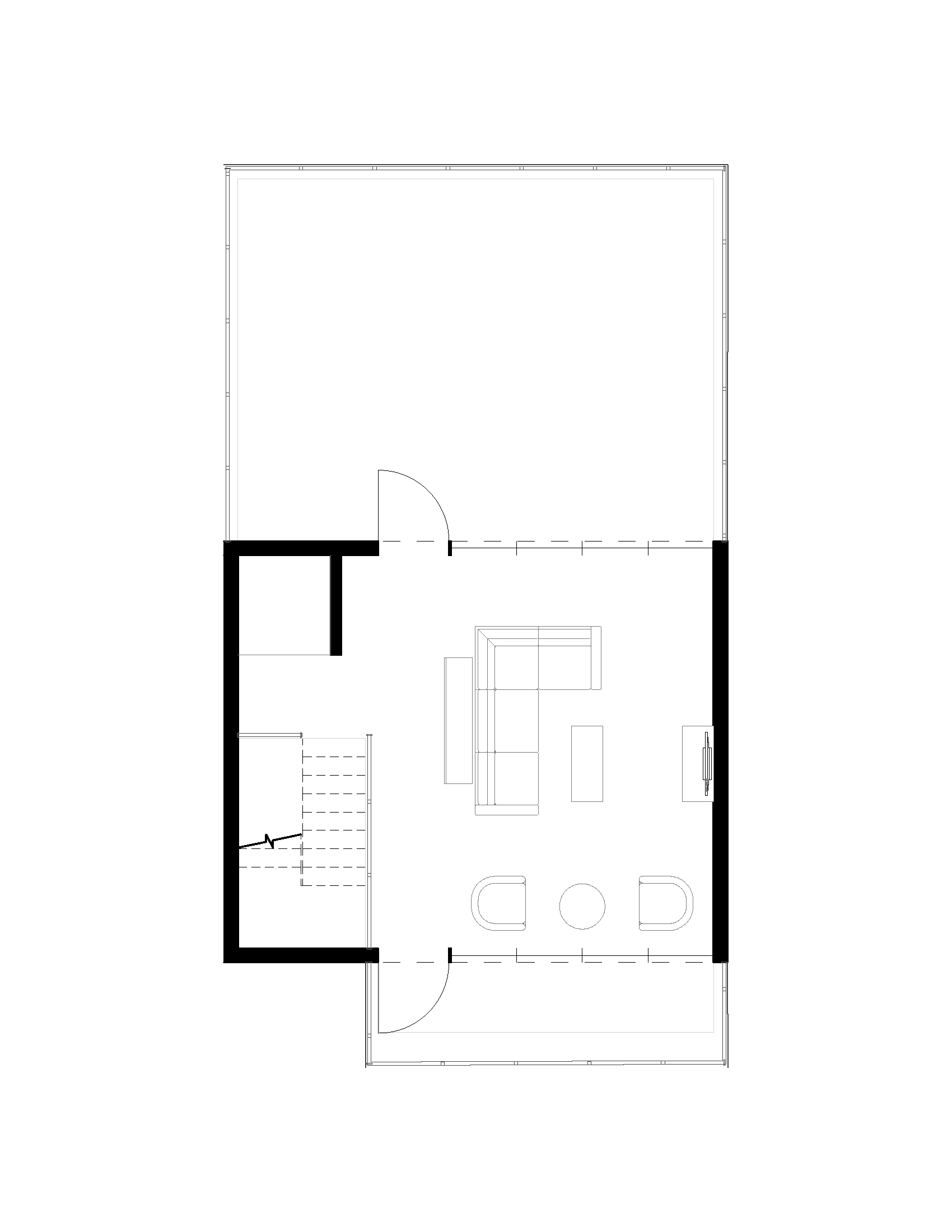
The Full Floor Living option provides spacious living, kitchen, and dining areas perfect for entertaining and comfortable living, as well as a half bathroom, balcony, and elevator.

The Full Floor Living option is available for single unit or single unit +ADU townhome configurations.

The Mezzanine layout is similar to the Full Floor Living, donning large living, dining, and kitchen spaces while also opening to the floor below creating vertical connections through the space.

The Mezzanine option is available for single unit townhome configurations.

The West Bedroom option features living, dining, and kitchen spaces that stretch north to south to maximize views. This layout also includes a bedroom with a 3/4 bathroom and in-unit washer and dryer.

The West Bedroom option is available for single unit, duplex, or triplex configurations and can be configured for private entry. Available for second and third floor configurations.

The North Bedroom option features living, dining, and kitchen spaces adjacent to a cantilevered bedroom with a walk-in closet, 3/4 bathroom and laundry.

The North Bedroom option is available for single unit, duplex, or triplex configurations and can be configured for private entry. Available for second and Third floor configurations.

The Single Suite options features a lofted, flexible space that overlooks the main living floor below, alongside a large single bedroom suite featuring a large closet, full bathroom, and laundry room.

The Loft Layout is available for single unit or single unit + ADU townhome configurations.

Third Floor Options

Click any plan to begin exploring options in 3D

The Loft layout features a lofted, flexible space that overlooks the main living floor below. Additionally, two bedrooms with closet space, a shared full bathroom, and a laundry room.

The Loft Layout is available for single unit or single unit + ADU townhome configurations.

The Den & 2 Bedroom offers a flexible den/living room ideal for lounging or entertaining, as well as two bedrooms with closets, a full bathroom with a double vanity, and dedicated storage.

The Den & 2 Bedroom option is available for single unit or single unit + ADU townhome configurations.

includes a spacious master suite with a walk-in closet and private full bathroom, two additional bedrooms sharing a second full bath, a convenient laundry area, and dedicated storage for added functionality.

The Suite & 2 Bedroom option is available for single unit or Single unit + ADU townhome configurations.

Roof Deck Options

Click any plan to begin exploring options in 3D

The full floor deck offers large rooftop deck space perfect for creating your ideal rooftop environment.

The Kitchen and Lounge plan offers a cozy indoor lounge with immediate access to the outdoor kitchen and living spaces, creating an ideal space for entertaining or relaxation

The Den option features a large den with immediate access to the outdoor living spaces, creating an ideal space for entertaining or relaxation